- COMPANY
- SЕRVICES
- ARCHITECT SERVICES
- ARCHITECTURAL DOCUMENTS
- Building Envelope Condition Survey Services
- BIM Services
- Design Services
- Diagnostic Analysis Services
- Drafting services
- Engineering Services
- Exterior Expansion Assemblies
- EXTERIOR DRAFTING
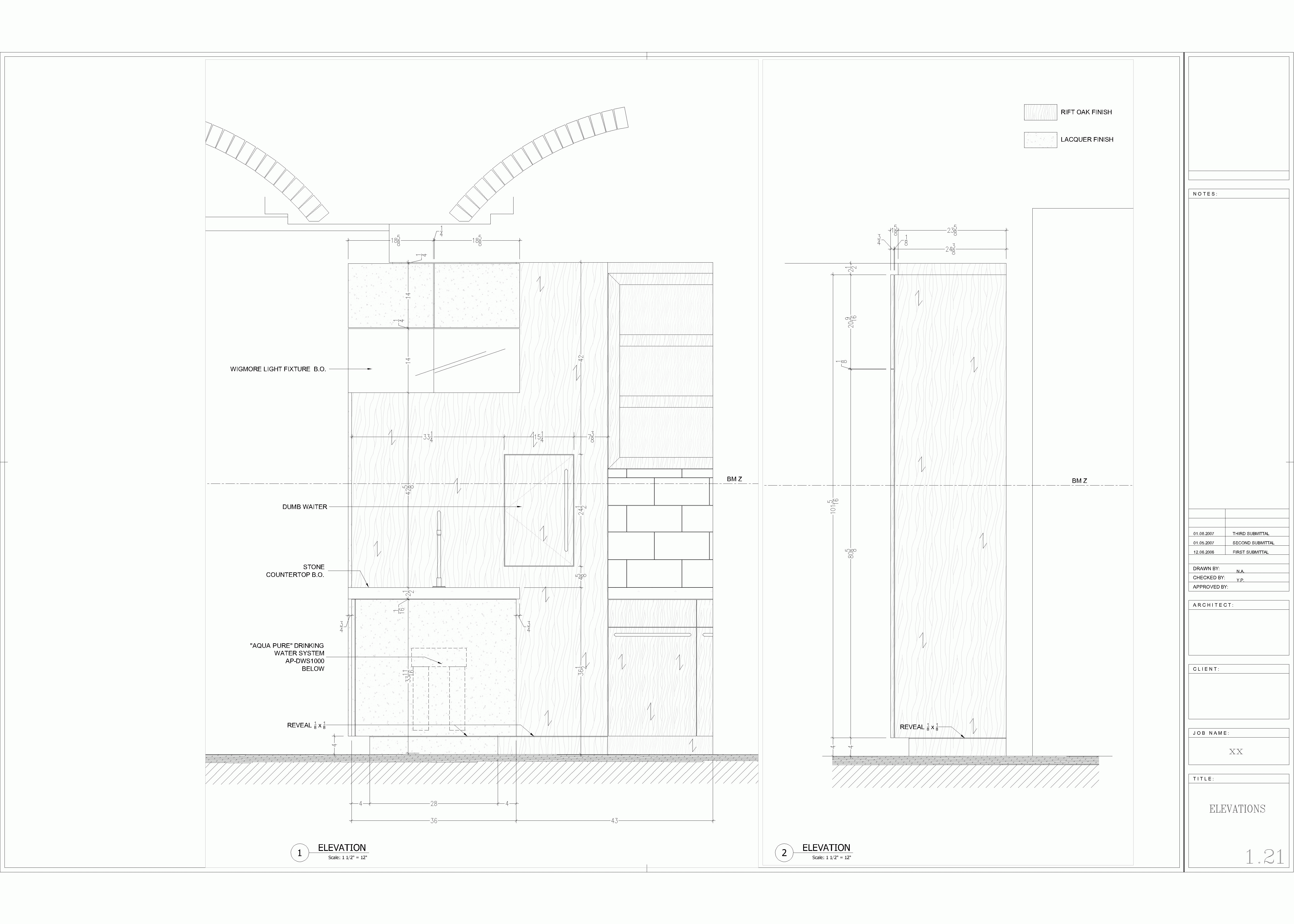
- INTERIOR DRAFTING
- Laboratory Mock-up Services
- PRELIMINARY DESIGN
- PROJECT OBSERVATION
- Roofing Services
- SHOP DRAWINGS AND SUBMITTALS
- Site observation services
- SUBMITTAL REVIEW
- SURVEYING
- TECHNOLOGY
- Thermal Modeling Services
- Waterproofing services
- PORTFOLIO
- SOFTWARE
- BLOG
- CONTACTS























