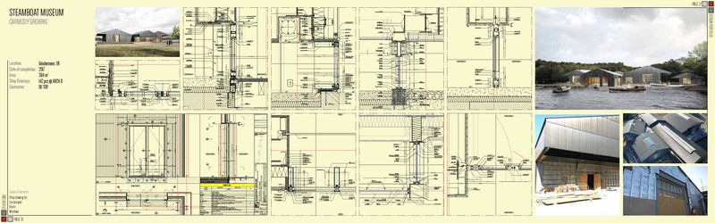
Steamboat museum, Windermere, UK

Photos...Project Presentation...

Scope of work: 

Shop drawing for:

  • Curtain wall
  • Doors
  • Windows

Contractor: UKTOP

Architect: CARMODY GROARKE

Date of completion: 2017

About the project:


Photos

Project presentation

StudioCAD - Portfolio (EU) Steamboat Museum

5 D. Nemirov Str.
Sofia 1324, Bulgaria, EU




Studio CAD's Cloud

Studio CAD's Cloud