River Road, New Jersey, USA

Photos...Project Presentation...

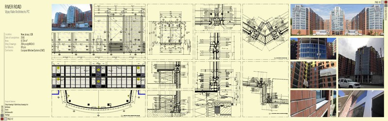
Scope of work:

Shop drawings & Workshop drawings for:

  • Windows
  • Doors
  • Window walls
  • Railings

Contractor: European Window Systems (EWS)

Architect: Vijay Kale Architects PC

Date of completion: 2016

About the project:


Photos

Project presentation

StudioCAD - Portfolio (EU) River Road

5 D. Nemirov Str.
Sofia 1324, Bulgaria, EU




Studio CAD's Cloud

Studio CAD's Cloud